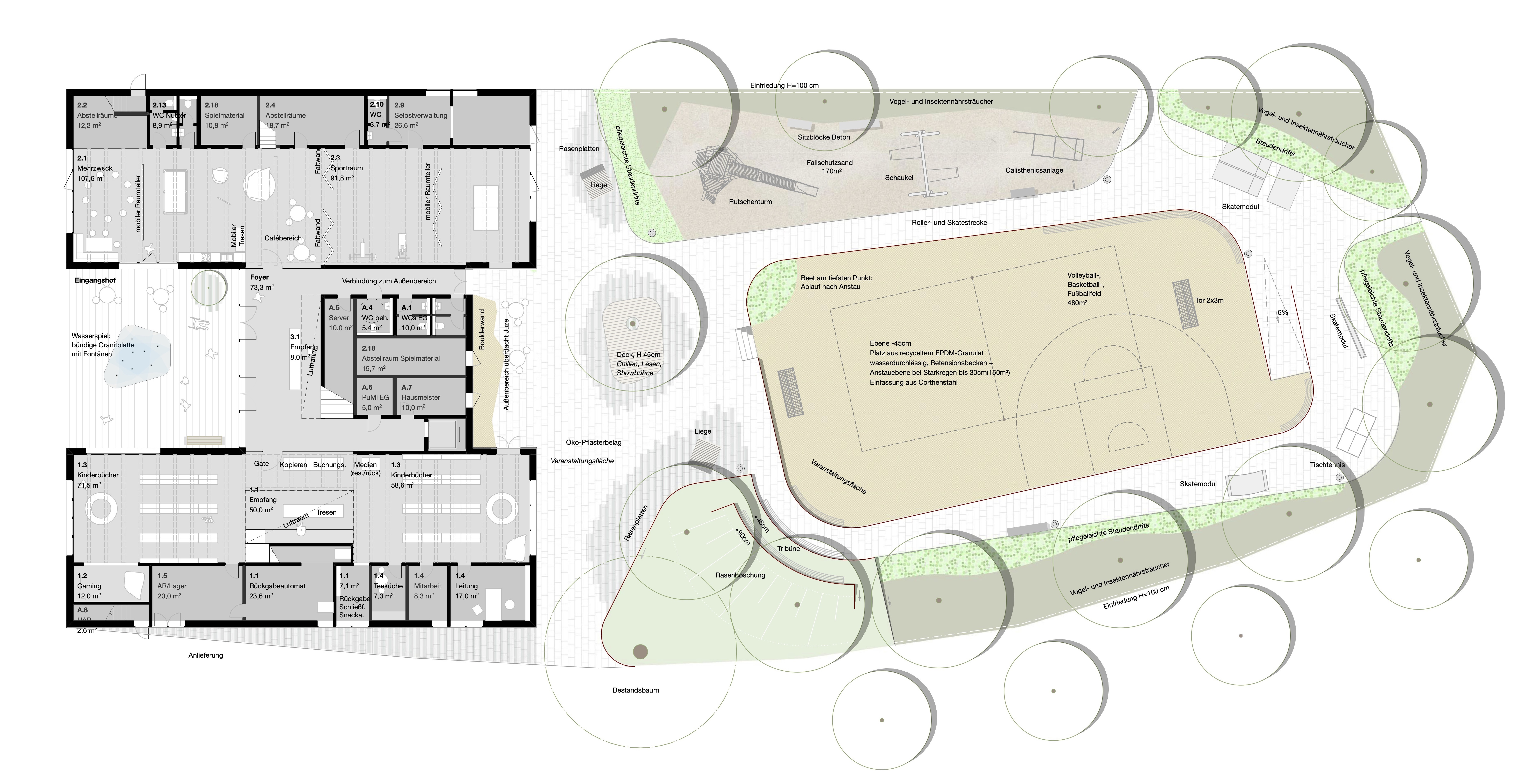
Ort: Hansestadt Lübeck, Moisling, Oberbüssauer Weg
Wettbewerb 2025, 2. Preis
Bauherr: öffentlich
Neubau eines Stadtteilhauses
Bürgerzentrum mit Jugendclub, Bürgerbüro und Bücherei
2.086 qm Nettoraumfläche
Holzhybridbau, transluzente hanseatische Ziegelfassade,
Durchlässigkeit der Räume und Nutzungen










