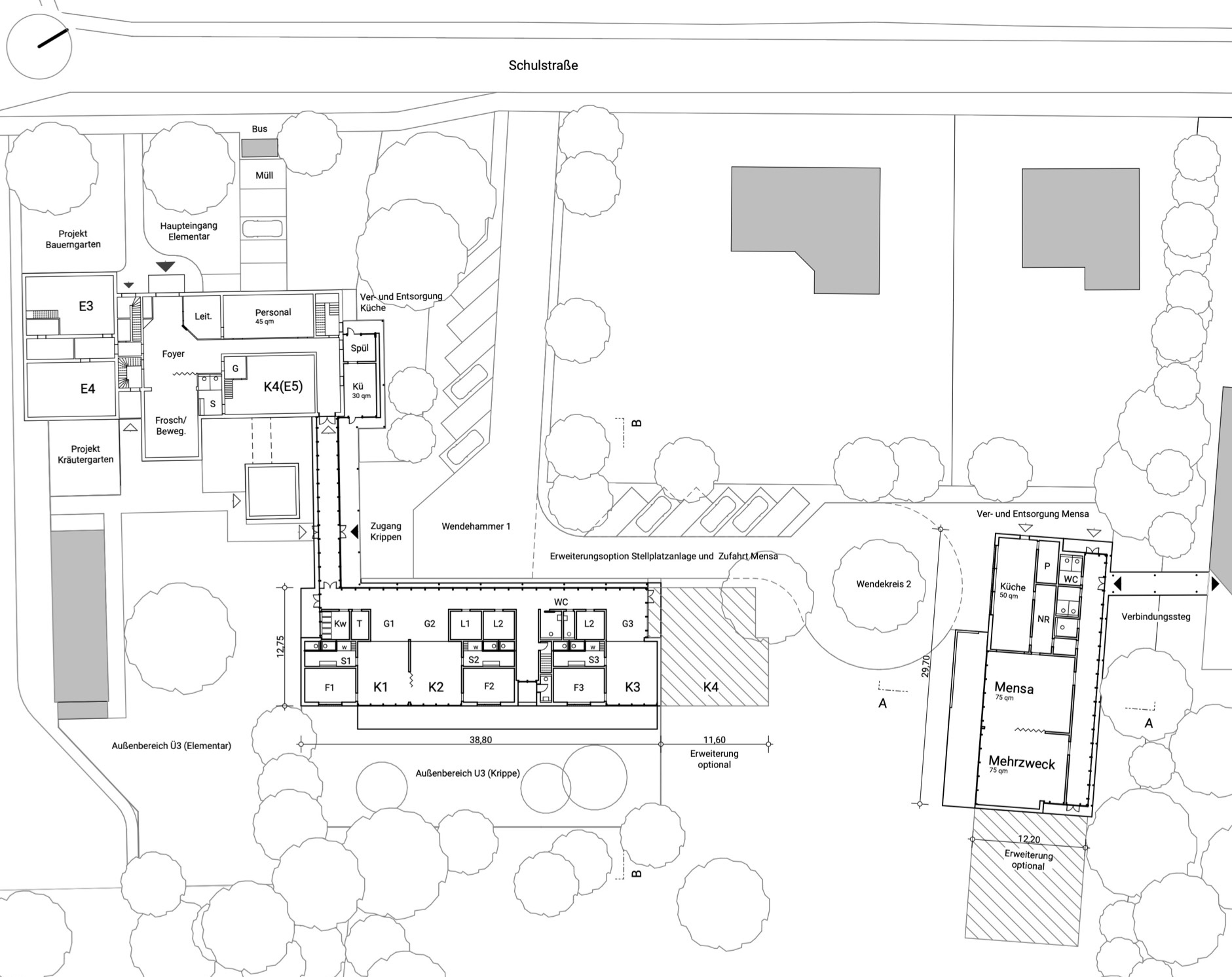
Ort: Wasbek, Schulstraße
Wettbewerb 2024, 1. Preis, Baubeginn: 2026
Bauherr: öffentlich
Neubau als Erweiterung einer Kita
3 Gruppenräume
450 qm Nettoraumfläche
Holzbauweise, modulare Flexibilität, individuelle Außenräume, strukturierte Nutzungen, Umbau und Neustrukturierung der Bestandskita
späterer Neubau eines Mensagebäudes in Verbindung zur benachbarten Schule


