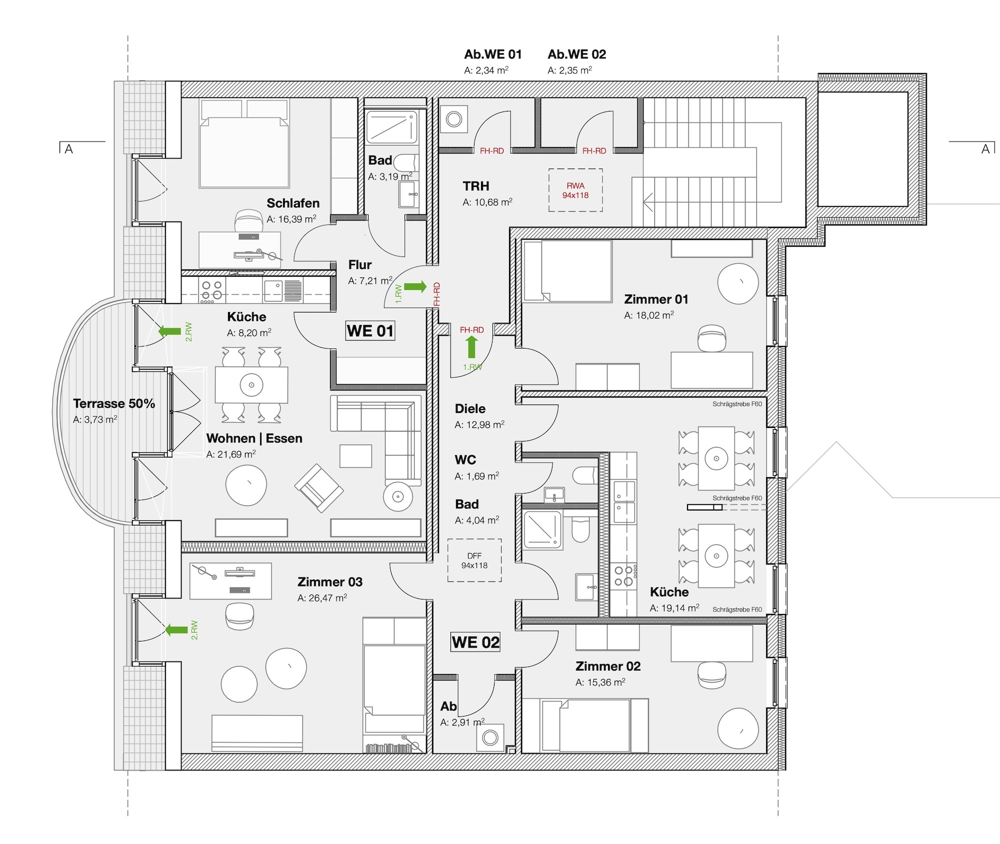
Penthouse Holtenauer Straße

Ort: Kiel, Holtenauer Straße
Baujahr: 2022
Bauherr: privat


Sanierung eines Brandschadens und Neuaufbau des Dachgeschosses

506 qm Wohnfläche