Sanierung im Elsterweg

Ort: Neumünster, Elsterweg
Projekt: 2020
Bauherr: privat


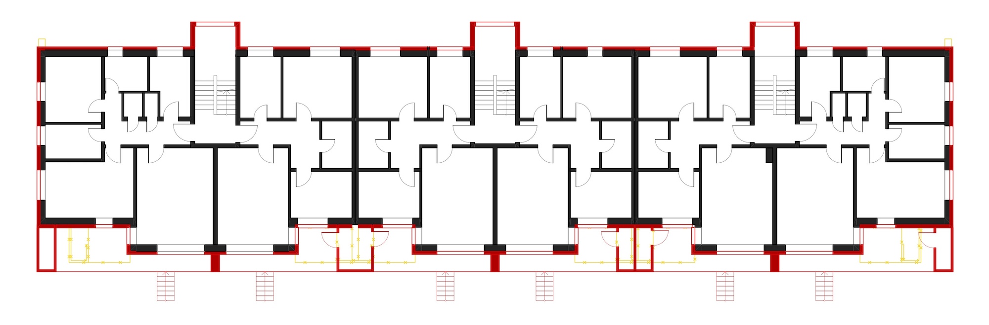
Energetische Sanierung eines Wohngebäudes

1.234 qm Nettoraumfläche

Serielle Sanierung, vorgestellte Elemente und Wohnraumergänzung