Feuerwache in Oldenburg i. H.

Ort: Oldenburg in Holstein, Ringstraße
Baujahr: 2022
Bauherr: öffentlich


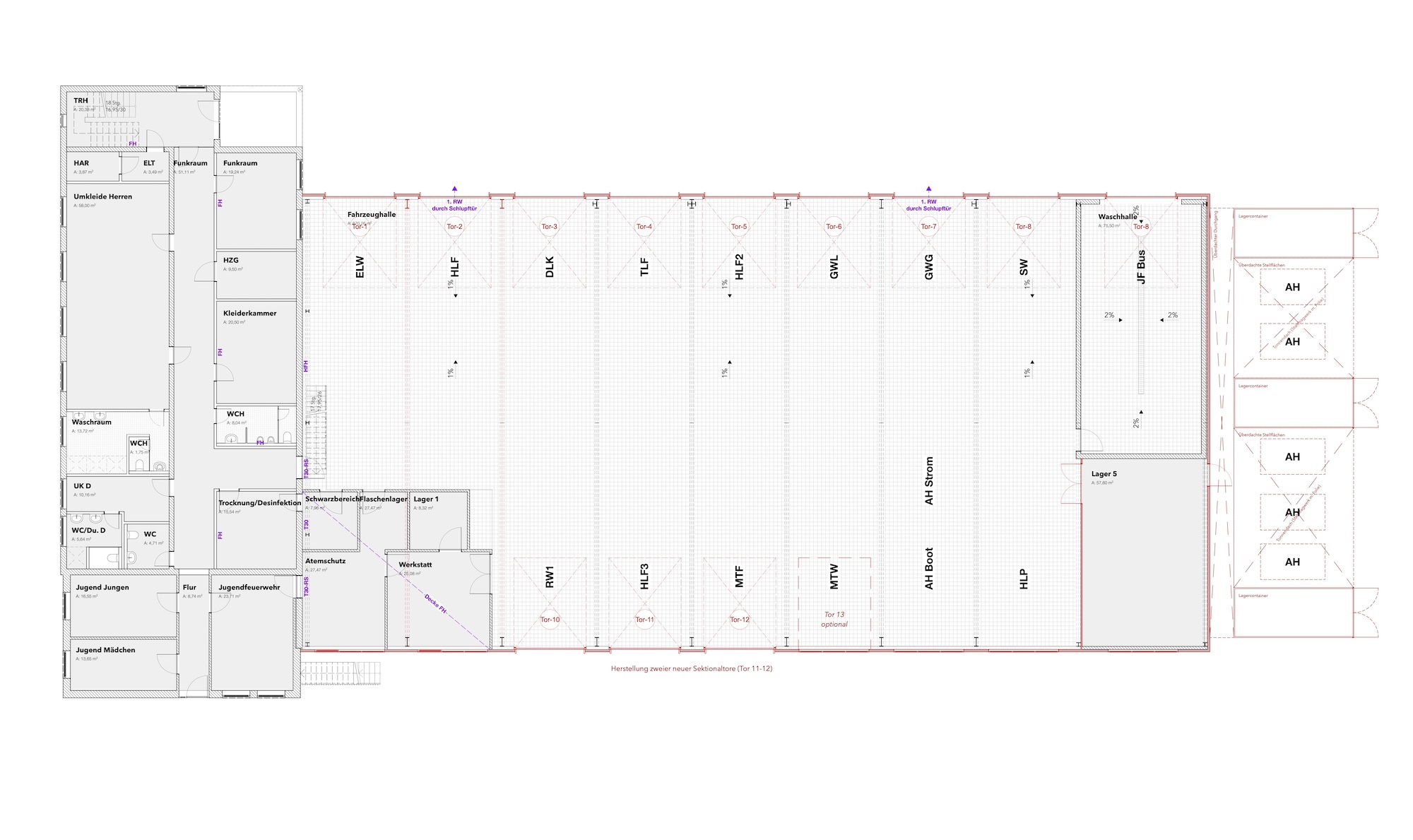
Brandschadensanierung, Wiederaufbau und Erweiterung einer Feuerwache
14 Einstellplätze, Waschhalle, Jugendfeuerwehr, Seminarräume

1.525 qm Nettoraumfläche