Ort: Flintbek, Schiefkoppel
Projekt: 2023
Bauherr: privat
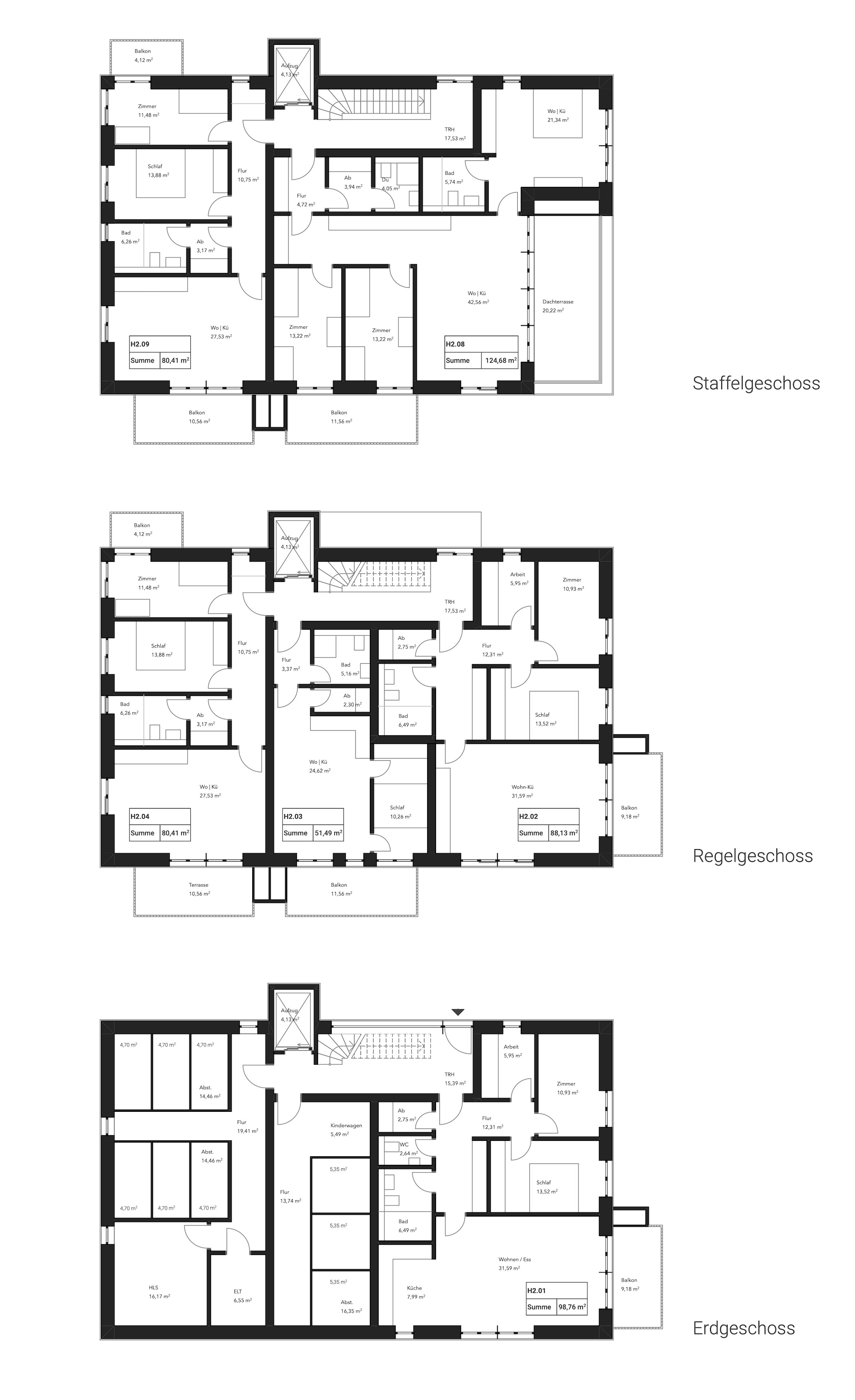
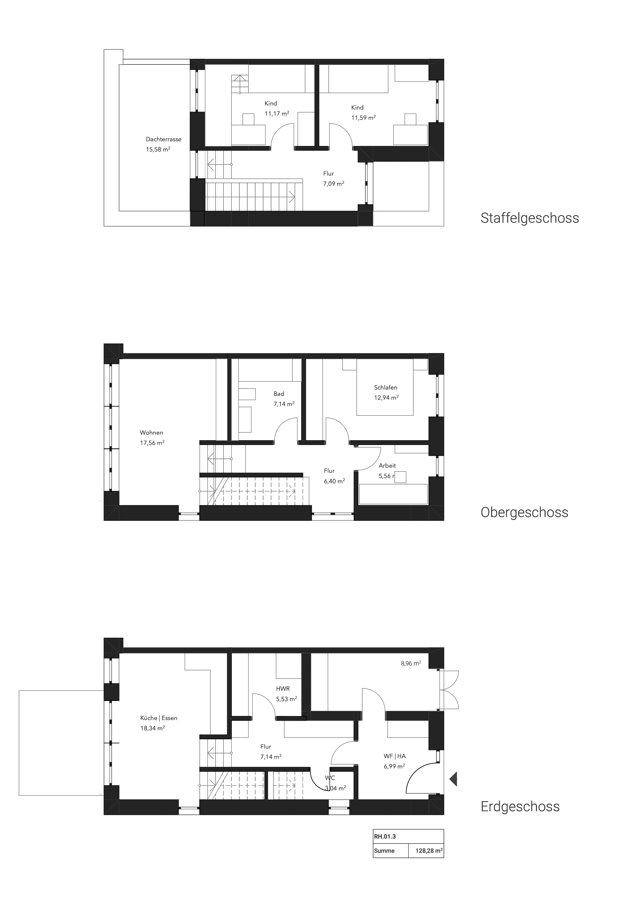
Neubau von vier Mehrfamilien- und neun Reihenhäusern für Baugruppen
49 Wohneinheiten, Gemeinschaftsbereiche, Café
5.114 qm Nettoraumfläche
4.037 qm Wohnfläche
Holzbauweise, Energiestandard KfW 40





