Wohnquartier Nooröffnung

Ort: Eckernförde, Nooröffnung, Reeperbahn
Investorenauswahlverfahren 2023, 2. Preis
Bauherr: privat


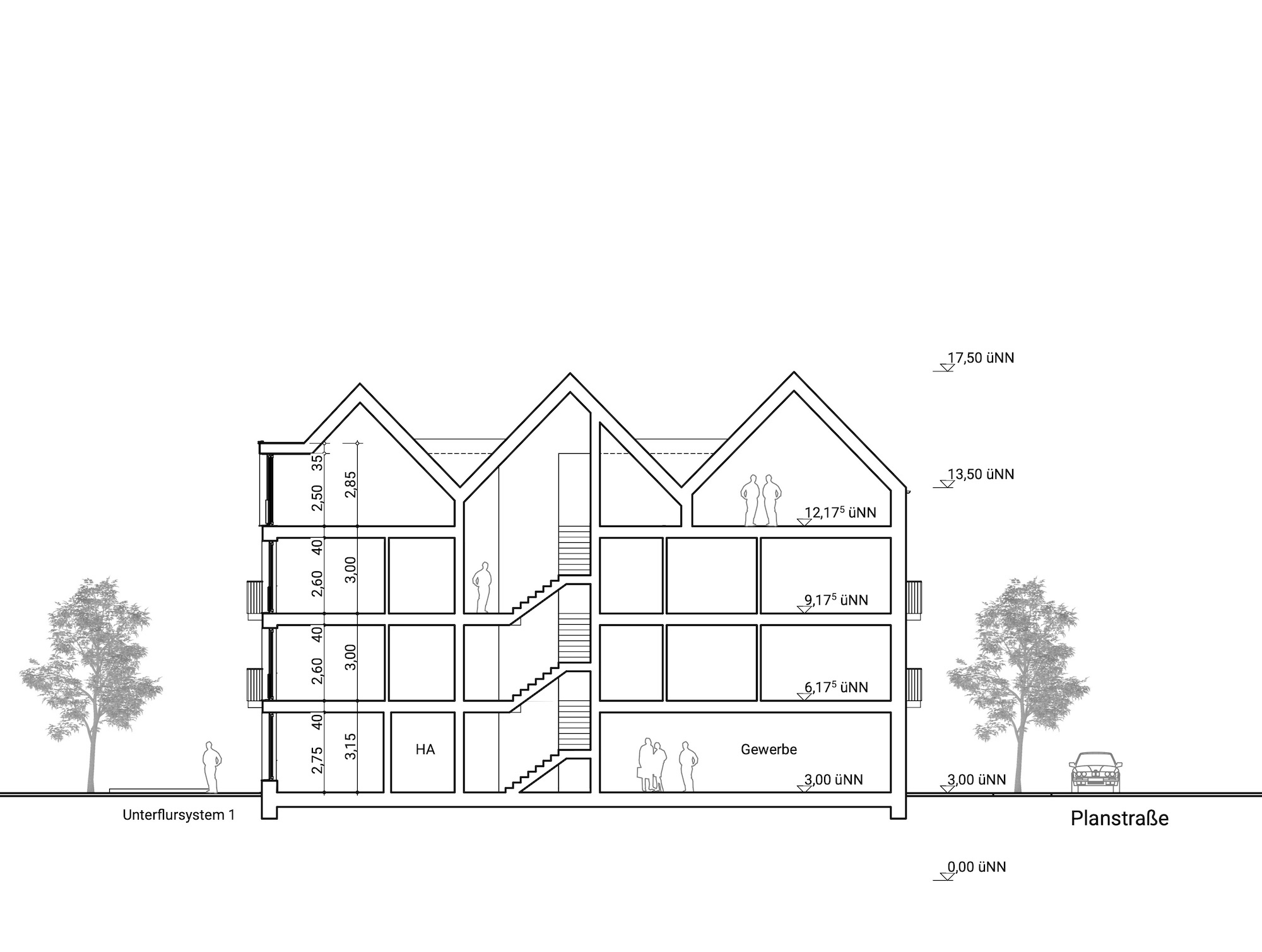
Neubau von vier Wohngebäuden
60 Wohneinheiten, 2 Gewerbeeinheiten, gemeinsame Tiefgarage

4.620 qm Wohnfläche

Energiestandard KfW 40