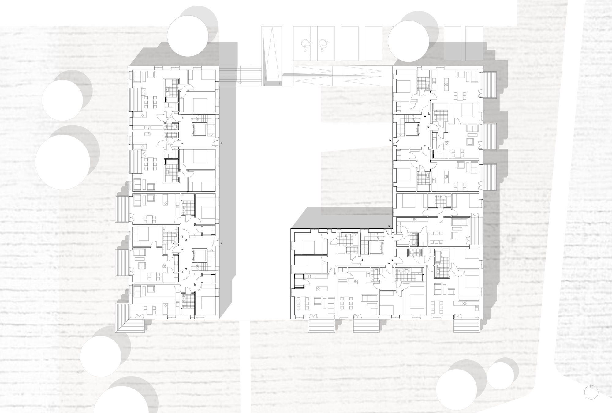
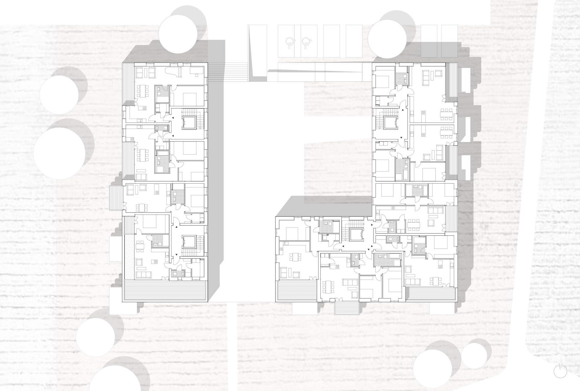
Ort: Flensburg, Schwarzenbachtal
Wettbewerb 2018, 1. Preis, Projekt: 2021
Bauherren: privat
Neubau von fünfzehn Wohngebäuden und einer Kita
447 Wohneinheiten, Tiefgaragen
ca. 43.000 qm Nettoraumfläche
Hochbauplanung LPh 1-3 aller Gebäude,
denkmerechte Sanierung und Entwicklung eines Wohngebäudes und einer Remise
(Visualisierung: glockenweiß)








