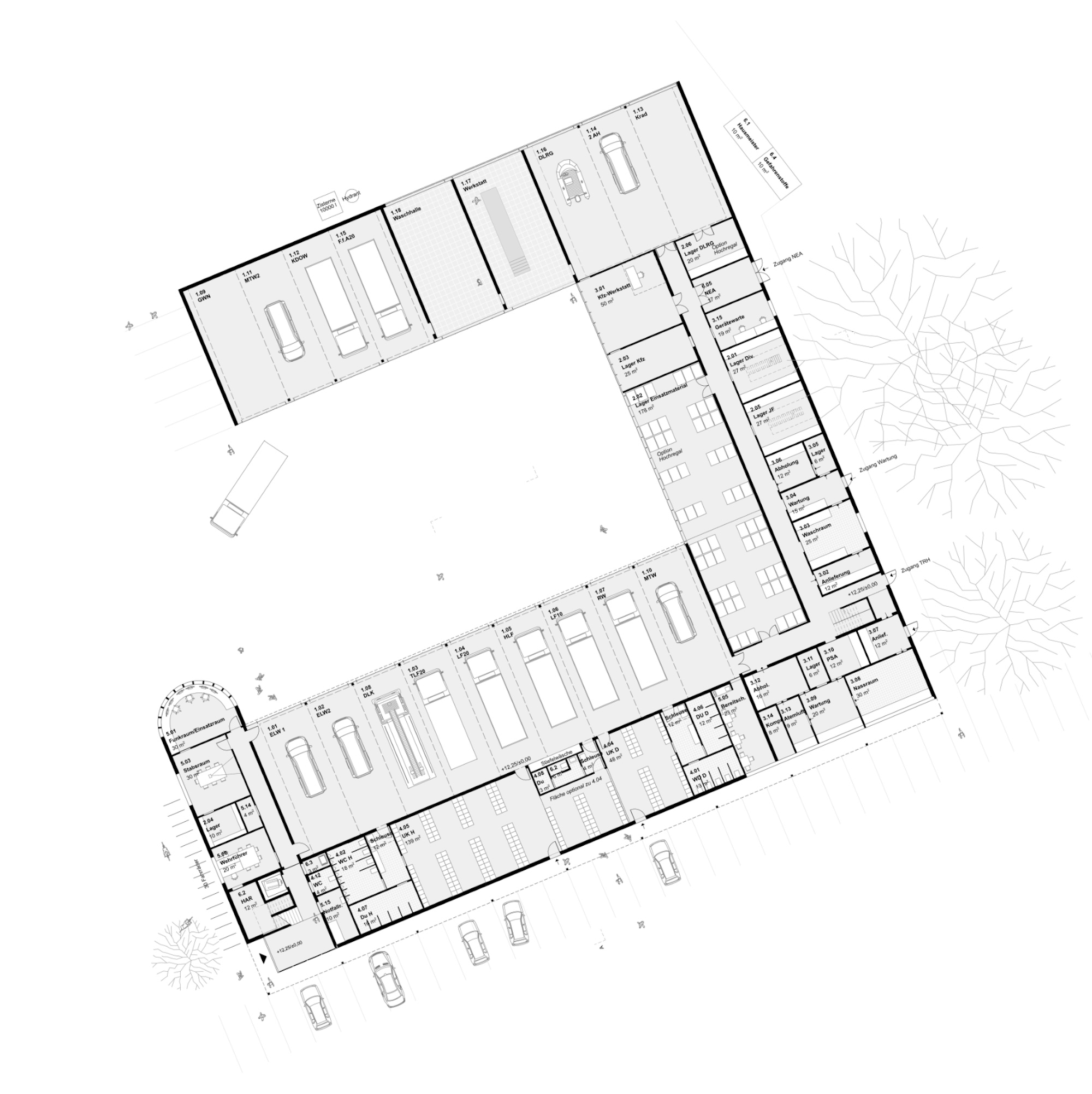
Ort: Bad Bramstedt, Hamburger Chaussee
zweiphasiger Wettbewerb 2021, zweite Phase, 6. Platz
Bauherr: öffentlich
Neubau einer Feuerwache
16 Einstellplätze, Waschhalle, Werkstatt, Seminarräume, Lagerbereiche
3.830 qm Nettoraumfläche
Holzhybridbauweise





